Previous | Next | Discuss :: Free Advice (General Feng Shui)
Dear Cecil,
Sorry it took me so long to get this layout to you.
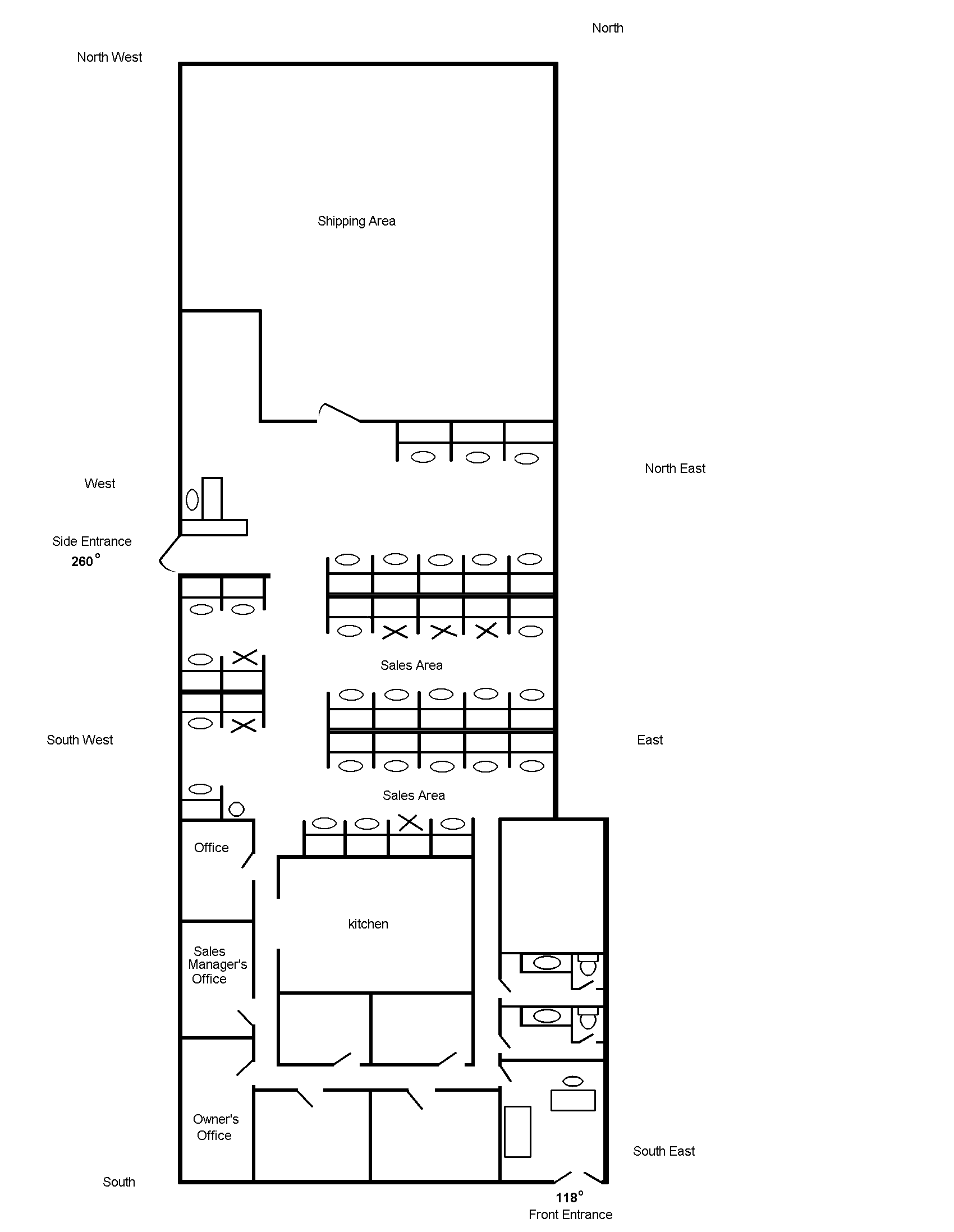
I couldn't find the center because I don't know if I should include the shipping area or not. The cubical with x marked on it are the ones that are opened to me. I also know in a month or so, there will be three other people leaving. So if you see a location that is best for me, please note it even though there is no x there.
>If you want ot do a Flying
>Star chart, please e-mail me
>privately so that I can give
>you a free credit for it.
Thank you for your generous offer to help me again. I don't know if I would need it though. Because if the shipping area is included in the analysis, then the compass reading of the main door from the center of the building is almost exactly the same as the reading of my home. The two structures are both built in the same era, so I assume that the flying chart will be the same. But if the shipping area is not considered part of the building, then I would need another chart.
I realize that the main entrance is in the SE which is death to me. I am using a side entrance from the parking lot that is in my Longevity or Health sector depending on whether the shipping area is considered or not. Do you think that is good enough to over come the bad front entrance?
Thanks.
Cheui May
>On 6/21/00 1:53:00 AM, Cheui May Heui
>wrote:
>>Dear Cecil,
>>
>>How are you? Hope you and
>>Robert are well.
>>
>>I haven't participated for a
>>while, because I placed the
>>cures that you recommended and
>>my attitude seemed to have
>>changed and now instead of
>>being sick and depressed,
>>wondering how I'm going to get
>>out of debt, I've started
>>working. Thank you for all
>>the help that you have given
>>me.
>>
>>I am working as a phone rep
>>for a company that sells
>>computer supplies. Being a
>>weak water, would that be a
>>lucrative business for me?
>>
>>My new manager is very kind to
>>me and have agreed to let me
>>choose any desk that is
>>available. I would like to
>>choose the best location for
>>my element and have drawn a
>>layout of the building. It is
>>about 75 feet wide by 200 feet
>>long. In the front 2/3 are
>>the offices and the back is
>>the shipping. My question is
>>shall I include the shipping
>>area in the analysis?
>>
>>Thanks,
>>
>>Cheui May
>
>
>
|
|
[ Site Search | Forum Search | Picture Search | Site Map ] |
|
|
|
|
||
|
Help Desk: (65) 9785-3171 |
||
|
|
|
|
|
Highlights |
|
Extend your learning with Master Cecil Lee's Applied Feng Shui Made Easy Book. |
|
Site Navigation |
|
|
|
|
![]()